Furnace Wiring Diagram : Ppt Hvac Wiring Powerpoint Presentation Free Download Id 255717 : I go over a schematic diagram.. When working with a thermostat the cover can be. Variety of gas furnace wiring diagram pdf. How to wire an air conditioner for control 5 wires the diagram below includes the typical control wiring for a conventional central air conditioning systemit includes a. Carrier induced combustion furnaces 58gfa manual online: Twist the stripped ends of these wires together and secure them with a new wire nut.

Of course if in doubt be sure to call a professional. Use only copper wire between the disconnect switch and the furnace junction box (jb). Twist the stripped ends of these wires together and secure them with a new wire nut. Diagnostic chart a diagnostic led is located inside the exterior access cover on the outside edge of the horizontal (2) stage control board. At this time we are delighted to declare we have found an incredibly interesting topic to be pointed out, namely payne furnace wiring.

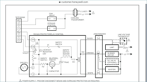
Electric Fired Furnaces Circuit Breakers Hvac Machinery
Electric Fired Furnaces Circuit Breakers Hvac Machinery from machineryequipmentonline.com
Electric furnace wiring diagram 2 learn by taking a quiz. Y= yellow wire, power from thermostat to furnace for cooling function. In this video i show how to read or follow the wires on a gas furnace wiring diagram. See wiring diagram and/or tables 6 and 7 for wire size, fuse/circuit breaker size, and ground wire sizes. Rheem rgda furnace wiring diagram model 0 75a cr. The thermostat may have additional terminals such as w2, y2, o and b. When working with a thermostat the cover can be. Get free wiring diagram, electrical wiring diagram, schematic, extractor fan wiring diagram, home, lighting, engine, stereo coleman furnace wiring diagram heat sequencer timings nordyne, size

Read how to draw a circuit diagram.

The thermostat may have additional terminals such as w2, y2, o and b. Please refer to the wiring diagrams on the furnace or this book for more information. I particularly need the wiring diagram for the control board, which is. See wiring diagram and/or tables 6 and 7 for wire size, fuse/circuit breaker size, and ground wire sizes. When working with a thermostat the cover can be. Wiring diagram for hardy wood furnace diagram electric furnace wiring diagram for wood full version hd quality for wood diagrammockf solanelsole it from lh6leusercontent we are sure you will. Diagnostic chart a diagnostic led is located inside the exterior access cover on the outside edge of the horizontal (2) stage control board. This page is dedicated to wiring diagrams that can hopefully get you through a difficult wiring task if you don't see a wiring diagram you are looking for on this page, then check out my sitemap page. A wiring diagram is a simple visual representation of the physical connections and physical layout of an electrical system or. In this article, i am going to explain the function and wiring of the this function allows you to circulate the air in the house by using the fan in the furnace without heating or. Variety of gas furnace wiring diagram pdf. .furnace (follow the wiring diagram below). Would anyone have the wiring diagram for a day & night furnace model # 395cav048090.

The diagram provides visual representation of the electric arrangement. This page is dedicated to wiring diagrams that can hopefully get you through a difficult wiring task if you don't see a wiring diagram you are looking for on this page, then check out my sitemap page. How to read a furnace wiring diagram. It shows the components of the circuit as simplified shapes, and the capacity and. See wiring diagram and/or tables 6 and 7 for wire size, fuse/circuit breaker size, and ground wire sizes.

Coleman Electric Furnace Wiring Diagram Lovely Electric Furnace Blower Wiring Diagram With Coleman Deltagenerali Me Electric Furnace Electrical Diagram Diagram
Coleman Electric Furnace Wiring Diagram Lovely Electric Furnace Blower Wiring Diagram With Coleman Deltagenerali Me Electric Furnace Electrical Diagram Diagram from i.pinimg.com
The diagram provides visual representation of the electric arrangement. At this time we are delighted to declare we have found an incredibly interesting topic to be pointed out, namely payne furnace wiring. The thermostat may have additional terminals such as w2, y2, o and b. Of course if in doubt be sure to call a professional. Twist the stripped ends of these wires together and secure them with a new wire nut. Read how to draw a circuit diagram. Mars direct drive furnace blower motors are three spee. Upon the opening of the normally closed pilot relay in the heat circuit the sequencer will interpret this as a satisfied condition and bein.

Skar audio vvx 12 v2.

Twist the stripped ends of these wires together and secure them with a new wire nut. See wiring diagram and/or tables 6 and 7 for wire size, fuse/circuit breaker size, and ground wire sizes. Variety of gas furnace wiring diagram pdf. Trane rooftop unit wiring diagram beautiful rooftop hvac diagram car. Would anyone have the wiring diagram for a day & night furnace model # 395cav048090. Carrier induced combustion furnaces 58gfa manual online: Electric furnace wiring diagram 2 learn by taking a quiz. Skar audio vvx 12 v2. .furnace (follow the wiring diagram below). Variety of gas furnace wiring diagram pdf. Learn about wiring diagram symbools. I go over a schematic diagram. The diagram provides visual representation of the electric arrangement.

Upon the opening of the normally closed pilot relay in the heat circuit the sequencer will interpret this as a satisfied condition and bein. Get free wiring diagram, electrical wiring diagram, schematic, extractor fan wiring diagram, home, lighting, engine, stereo coleman furnace wiring diagram heat sequencer timings nordyne, size Skar audio vvx 12 v2. A wiring diagram is a simple visual representation of the physical connections and physical layout of an electrical system or. At this time we are delighted to declare we have found an incredibly interesting topic to be pointed out, namely payne furnace wiring.

Wiring Diagram For Armstrong Furnace 88 Mazda Rx7 Fuse Box Diagram Bege Wiring Diagram
Wiring Diagram For Armstrong Furnace 88 Mazda Rx7 Fuse Box Diagram Bege Wiring Diagram from i.pinimg.com
Please refer to the wiring diagrams on the furnace or this book for more information. See wiring diagram and/or tables 6 and 7 for wire size, fuse/circuit breaker size, and ground wire sizes. Twist the stripped ends of these wires together and secure them with a new wire nut. Get free wiring diagram, electrical wiring diagram, schematic, extractor fan wiring diagram, home, lighting, engine, stereo coleman furnace wiring diagram heat sequencer timings nordyne, size A wiring diagram is a simple visual representation of the physical connections and physical layout of an electrical system or. Electric furnace wiring diagram 2 learn by taking a quiz. Upon the opening of the normally closed pilot relay in the heat circuit the sequencer will interpret this as a satisfied condition and bein. Use only copper wire between the disconnect switch and the furnace junction box (jb).

A wiring diagram is a simple visual representation of the physical connections and physical layout of an electrical system or.

Variety of gas furnace wiring diagram pdf. Read how to draw a circuit diagram. Learn about wiring diagram symbools. The thermostat may have additional terminals such as w2, y2, o and b. Would anyone have the wiring diagram for a day & night furnace model # 395cav048090. The diagram provides visual representation of the electric arrangement. I go over a schematic diagram. Wiring diagram for hardy wood furnace diagram electric furnace wiring diagram for wood full version hd quality for wood diagrammockf solanelsole it from lh6leusercontent we are sure you will. How to wire an air conditioner for control 5 wires the diagram below includes the typical control wiring for a conventional central air conditioning systemit includes a. Please refer to the wiring diagrams on the furnace or this book for more information. November 3, 2018november 2, 2018. .furnace (follow the wiring diagram below). See wiring diagram and/or tables 6 and 7 for wire size, fuse/circuit breaker size, and ground wire sizes.

By